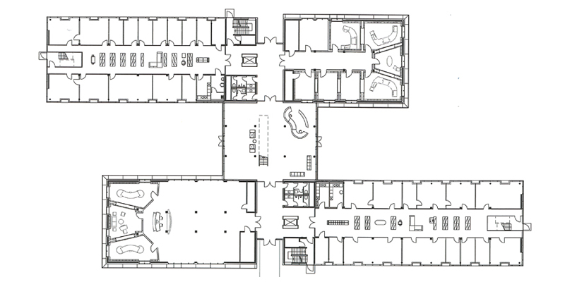
Kieler Straße in Kronshagen
Auswahlverfahren | Kronshagen | 2020 | 3. Preis
Kieler Straße in Kronshagen
Wohn- und Ladenflächen, Punkthäuser, Geschosswohnungsbau und Gewerbe: In Kiel-Kronshagen steht eine Quartiersentwicklung in der Ortsmitte in Ergänzung zum Rathaus und zum Marktplatz an. Der ASP-Entwurf nimmt die Intention des Auslobers und des Rahmenplans auf und entwickelt daraus eine zukunftsfähige und ökonomische Grundstruktur mit vielfältigen Nutzungsmöglichkeiten von hoher gestalterischer Qualität, die einen wertvollen Beitrag zum gemeinschaftlichen Wohnen bilden. Die unterschiedlichen Nutzergruppen, gespiegelt in den verschiedenen Haus- und Wohnungstypen, schaffen die gewünschte Diversität im neuen Quartier.
Platz 19 im competitionline Ranking
18. März 2025
Platz 19 im competitionline Ranking
Unser Büro belegt im aktuellen competitionline Ranking Platz 19. Wir freuen uns über diese Platzierung und danken unserem Team, unseren Bauherren und Partnern für die gute Zusammenarbeit.
Pressemeldung
9. März 2024
Pressemeldung
Über den feierlichen Spatenstich zum Projektstart des Neubaus Finanzamt Stade wurde im Tageblatt und auf tageblatt.de berichtet.
Pressemeldung
26. Mai 2023
Pressemeldung
Bereits im März hat ASP den 1. Preis im VgV-Verfahren für die Erweiterung des Charlotte-Paulsen-Gymnasiums in Wandsbek erhalten. Im Rahmen einer Pressekonferenz wurde nun die Planung durch den Hamburger Schulsenator Ties Rabe und den Finanzsenator Dr. Andreas Dressel vorgestellt.
Stellenangebot
12. April 2023
Stellenangebot
Zur Verstärkung unseres Teams in HAMBURG suchen wir Architekt*innen/ Bauleiter*in mit Berufserfahrung in den LPH 6 - 8. Wir freuen uns auf Ihre Bewerbung.
Wettbewerbsgewinn
28. April 2022
Wettbewerbsgewinn "Esseler Straße Ost" in Schwarmstedt
Mit einem Entwurf für das neue Wohnquartier „Esseler Straße Ost“ in Schwarmstedt hat ASP im Rahmen eines Wettbewerbs den 1. Preis erhalten. Wir freuen uns gemeinsam mit dem Entwickler, der FF Res Immobilien GmbH, über den Erfolg.
Neues Projekt in Hannover-Stöcken
28. Januar 2021
Neues Projekt in Hannover-Stöcken
Beauftragt durch die FF Res Immobilien GmbH hat ASP die Planung eines Wohngebäudes im Hannoverschen Stadteil Stöcken übernommen. In dem 5-geschossigen Eckgebäude sollen 30 geförderte Wohnungen entstehen.
ASP gewinnt Vergabeverfahren Neustadt in Holstein
10. November 2020
ASP gewinnt Vergabeverfahren Neustadt in Holstein
Gemeinsam mit dem Vorhabenträger, der Norddeutschen Grundstücksentwicklungsgesellschaft (NGEG) aus Kiel, und Lichtenstein Landschaftsarchitekten belegt ASP den 1. Preis beim Konzeptvergabeverfahren um das Stadtwerkegrundstück in Neustadt in Holstein. Wir freuen uns auf ein spannendes Projekt an der Ostsee.
Räume machen Leute Über Haltung im Architektenleben. Erbauliche Kolumnen
15. Oktober 2020
Räume machen Leute Über Haltung im Architektenleben. Erbauliche Kolumnen
»Architekt zu sein, verspricht geniale Aussichten: gesellschaftliches Renommee, dicke Brieftasche, hoher Bekanntheitsgrad. So die Illusion.« Wolfgang Schneider, Architekt und ehemaliger Kammerpräsident, gewährt einen Blick hinter die Fassade seines Berufsstandes. Die Kolumnen, von Erik Liebermann illustriert, bewegen sich zwischen Dichtung und Wahrheit, schildern Subtilitäten und Absurditäten aus dem Architekten- und Kammeralltag, berichten von Höhenflügen, dem Überwinden von Grenzen, von großen und kleinen Pannen im Planungs- und Baugeschehen. Mit feiner Ironie, viel Liebe zum Beruf und stets einem Augenzwinkern zeigt er, woran es im Architektenleben niemals mangeln darf: Haltung.
Landwehrviertel Osnabrück
9. Januar 2020
Landwehrviertel Osnabrück
Im Rahmen des Nachhaltigkeitspreis der Stadt Osnabrück wurde auch das durch ASP realisierte Landwehrviertel erwähnt.